8123
m 2
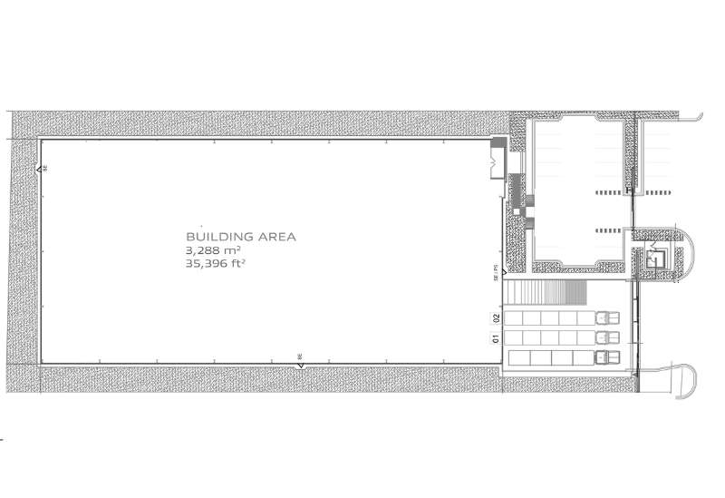
Nave clase A en Renta de 3,288m2 dentro de parque en Guadalupe zona sur-oriente, N.L., con excelentes vías de comunicación e infraestructura de primera, actualmente en construcción, lista para entrega en SHELL en 4Q 2025.
Equipamiento de acuerdo a requerimiento del cliente:
• Oficinas
• Subestación
• Sistema de ventilación
• Sistema vs. incendio
- En dado caso de necesitar mejoras adicionales con gusto trabajamos una propuesta basada en lo que necesite el cliente.
- Contrato mínimo 5 años y en dólares
- Precio de renta: $0.60 USD/FT²/Mo a $0.70 USD/FT²/Mo
- El arrendatario tendrá que cubrir: Impuesto Predial, Seguros y Cuota de Mtto. de áreas comunes.
- Opción de renta escalonada, ó Ramp up, por ejemplo 6 meses el 50% de la nave, 6 meses el 75% y a partir del mes 13 la nave completa en m2. (previo a aprobación).
- La capacidad de carga del firme std es de 15 cm en producción es de 4.5 ton x m2 uniformemente distribuidos.
- Los derechos de los kvas son pagados directo por cliente, independientes al contrato, el costo es en USD x kva + iva, varia el costo por municipio.
ESPECIFICACIONES:
- Terreno: 5,921 m2
- Construcción: 3,288 m2
- Dimensiones de la bahía: 10.20 m x 39.08m
- Tragaluces: 4% aprox.
- Altura libre: 9.75 m | 32’
- Cubierta: Cubierta metálica / STANDING SEAM ROOF
- Muros: concreto pre colado
- Espesor de Firme: 15cm / 6"
- Estructura: Marco rígido de acero
- Subestación: según se requiera
- Docks: 2 + 1
- Rampas: 1 rampa de concreto
- Estacionamiento: 21 cajones
- Caseta de seguridad: 9.90m2
- Sist. vs. Incendio según se requiera
VENTAJAS:
- Aeropuerto a menos de 30 min en auto.
- Autopistas a:
Aeropuerto, Monterrey, Saltillo – Ramos Arizpe, Reynosa – McAllen, Laredo TX, y Ciudad de México.
- Acceso controlado 24/7:
- Bardeado y cerrado
- Uso: Manufactura, ensamblaje y distribución.
- Transporte: Público.
- Infraestructura: Todo en sitio. La mejor disponible.
- Mano de obra: Cercana - Fácil Acceso.
INFRAESTRUCTURA DEL PARQUE:
- Agua (red del parque)
- Drenaje (red del parque)
- Voz y datos (TELMEX)
- Energía:CFE
- CCTV : 24/7
*Precios, características y fotografías deben ser consideradas meramente informativas y sujetas a cambio sin previo aviso. Para una cotización más precisa y actualizada, por favor contáctenos, uno de nuestros asesores especializados le atenderá con todo gusto.
Eloy Cavazos y Acueducto , Guadalupe, Nuevo León